Te invitamos a adentrarte ¡bien lo vale! en este enclave cordobés – resumidos en 7 paradas estratégicas sus principales atractivos –. Es el solar de Orive. Tan aparentemente escondido y reservado como a la vez poderoso, espiritual y misterioso, estamos en la “manzana de oro” de Córdoba, la de mayor extensión del casco histórico de la ciudad. Ya verás…

PARADA 1– partiendo de la plaza y con la entrada al palacio de cara, nos centramos en su PORTADA que construida por Hernán Ruiz II en 1560 está considerada la mejor muestra de arquitectura civil renacentista en la ciudad. La dualidad del nombre por el que es conocido “palacio de Orive – Villalones” se explica por los dos apellidos vinculados sucesivamente a él, como propietarios. Partiendo de la casa matriz, de origen mudéjar, que compra y monumentaliza Juan García de Villalón, de profesión trapero (ojo, porque el profesor de Historia Moderna de la UCO, Gonzalo Herreros nos ayuda una vez más con sus valiosas puntualizaciones que tanto le agradecemos: “trapero” no debe entenderse con la connotación de ropavejero, ¡al contrario! podía ser un empresario textil que moviese miles de ducados al año, – pero, eso si, no tenía un origen noble-). La última heredera de la familia es la que “pega el salto”, se encumbra, casándose con un noble de origen extremeño que ya es “Orive”, enlace matrimonial del que nació D. Alonso de Orive y Villalón, quedando con él unidos y también físicamente a esta Casa los dos apellidos todo el siglo XVIII y hasta el s. XIX, cuando venden el palacio a una rama de los Fernández de Córdoba.
Las fuentes escritas nos informan, aunque más de pasada de lo que nos gustaría, de que en el s. XIX fue arrendado con usos tan diferentes, curiosos y fugaces como estafeta de correos, colegio francés y atanazara. También sabemos que, antes, durante la ocupación francesa en 1811 fue usado como cuartel y cárcel por las tropas del ejército napoleónico y por las Milicias Nacionales hacia 1850.
Comprado el palacio en 1919 por D. Gregorio García, de origen soriano, él fue quien lo amplió incorporándole ese mismo año a la propiedad el huerto del ya desamortizado (*) convento de san Pablo (del que queda hoy en pie solo la iglesia.) Fíjate en la vista aérea google maps donde se sitúa cada uno de los hitos que iremos enumerando, qué extensión ocupan en relación al todo y la conexión de unos con otros, sobre plano.
En 1992 el Ayuntamiento adquiere palacio y huerto, en total casi 9. 500 m2 de superficie, de las que 8.410 son huerto. Hoy es la sede de un área municipal ¿sabes cual? y ¿desde qué año?
Su monumental portada de piedra reúne en sus tres cuerpos los elementos artísticos propios del Renacimiento. De tipo ventana sobre puerta, enmarcada por dos columnas dóricas sobre basamento, aparece en el centro un medallón donde una amazona con los brazos extendidos despliega una cinta con inscripción en latín que proclama “la buena fe es gran cosa” ¿lees el texto original? A ambos lados la custodian dos cabezas de leones anillados, símbolos de dominio; sobre ellos un friso corrido que despliega entre ménsulas, conchas, escudos, rosetas y florones da paso a la ventana rematada en frontón triangular que centra la composición, rodeada de abigarrados motivos vegetales, como guirnaldas frutales, florales y alegóricos. Rematan con airosidad, esbeltez y elegancia esta escenográfica y plateresca presentación social de la familia. En el tercer piso sobresale un interesante mirador con galería de tres arcos, ¿qué motivos recorren su base? En el interior te esperan más elementos interesantes “de época” que se han sabido respetar: la escalera de piedra, la distribución espacial general en torno a los patios, las galerias porticadas, los arcos de medio punto, el zaguán de acceso…
En este punto del noble “hall” enlazamos con PARADA 2– la inquietante (y trágica) historia que situamos aquí y le ha valido también el sobrenombre de “Casa del Duende”: sus protagonistas son sus entonces propietarios, el corregidor “de la casaca blanca” don Carlos de Usel y Guimbarda, viudo, y su hija doña Blanca. Completan el elenco unos forasteros que llegaron pidiendo cobijo en una lluviosa noche, una gitana, una vela, la doncella, un tesoro escondido… entre otros ingredientes… ¿por qué murió solo y desesperado? Se dice que una sombra femenina misteriosa recorre toda la casa y a veces se escuchan voces agónicas de socorro ¿quien es esa alma que vaga pidiendo ayuda? Según la tradición, recogida por Ramírez de Arellano en sus clásicos Paseos por Córdoba ¿qué “pasó” aquí? Te dejamos que lo averigües.
Verás, según la fuente consultada, que circulan variantes, porque las LEYENDAS – con un cierto margen de verdad histórica -, se transmitían de forma oral, el pueblo las hacía suyas, y ahí radica su éxito… pero también su perdición (por la vía de la tergiversación, el echarle fantasía o alimentar el morbo de los aspectos escabrosos, por ejemplo). Además, encierran “moraleja”, nos recrean el mundo de las mentalidades y costumbres de la época en que se ambientan, ésta a fines del s. XVII.
¿Qué emociones entran en juego para, llevadas al extremo, desencadenar el fatal desenlace: el rencor, la avaricia, la curiosidad desmedida?
A pesar de su tremendo tirón popular, para ser justos habría que cuestionarla de principio a fin porque ¿Qué hay de rigurosa verdad histórica en el relato, si es que hay algo ¿quién es quién? ¿qué no pudo ocurrir??
PARADA 3: avanzamos hacia el JARDIN – HUERTO: para tesoro ¡éste!, el que traía incorporado, de regalo, el que fuera huerto de la comunidad religiosa una vez que quedó unido al palacio: una sala capitular inconclusa. Iniciada en el s. XVI por los monjes dominicos del convento de san Pablo y construida por Hernán Ruiz III, el mejor arquitecto de la ciudad en aquel tiempo, nunca se llegó a terminar, quizá porque se quedarán sus responsables sin fondos económicos para una obra excesivamente ambiciosa. A finales de 2006 la Gerencia de Urbanismo adjudicó su rehabilitación: con un patio de butacas para unas 250 personas, la bautizada como Sala Orive es hoy, tras 400 años, un cotizado espacio cultural polivalente que acoge muestras, conferencias, conciertos, congresos, representaciones teatrales, etc… por eso cuenta, de entrada, con una sala anexa como edificio de servicios que distribuye el ambigú, los camerinos, aseos, bar… ¿sabes cual fue el primer acto fotográfico que acogió, en diciembre de 2008?
Soberbia y equilibrada, de imponente majestad, la Sala tras su alabada puesta en valor (puedes leer en la cartela exterior, a la entrada, qué entidad europea la cofinanció y qué premió consiguió) es hoy un espacio diáfano rectangular con una intervención mínima, pero impecablemente lograda, porque entendiendo este enclave como una “ruina persistente”, la rehabilitación huyó de interpretar lo que el autor tuvo previsto hacer, ni quiso “terminar” la obra original, ni incorporar nuevos elementos arquitectónicos. Observa:
- El comienzo del trazado de la bóveda que quedó solo proyectada, nunca llegó a hacerse realidad.
 - No hay albañilería convencional sino estructuras desmontables y reversibles. La cubierta “flota” sobre el muro y está atornillada para permitir que el aire circule. Está formada por una estructura metálica de casetones de cristales cerrada con un techo traslúcido para que, entre la luz, pero preparada con filtros ultravioletas para no alterar obras expuestas. Materiales de última generación que permiten controlar las radiaciones solares y evitan el efecto invernadero, sin restar luminosidad.
 - Los muros de casi dos metros de ancho y 13 de alto están cubiertos con un zócalo de madera que los forra hasta los 3 metros, sirve para ocultar instalaciones eléctricas y de climatización, y de soporte para colgar las obras, pero también tapa el hueco que habrían dejado las sillas de los frailes.
 - ¿Qué son todos esos orificios cuadrados que perforan los muros, sin tregua, en toda su extensión? la huella de los MECHINALES, que sabrás qué papel jugaba en el andamiaje de la construcción…. Como no se verían en la obra terminada ¿cómo irían entonces vistas las paredes del edificio? ¿qué crees que le falta a la sala si hubiera llegado a funcionar con el uso para el que fue concebida?
 - La solidez de los muros se puso a prueba resistiendo el devastador terremoto de Lisboa de 1755 pero el edificio (como otros en la ciudad) sufrió secuelas aún hoy visibles, como la vistosa GRIETA respetada como testimonio del desastre natural. La ves ¿verdad?
 - La restauración siguió estrictas medidas medioambientales al haberse convertido en zona de anidamiento de los CERNÍCALOS PRIMILLA, aves en peligro de extinción que siguen conservando sus nidos en los mechinales exteriores, así que se redujo el tamaño de huecos para dificultar que las más grandes y dañinas palomas pudieran entrar al edificio.
 
PARADA 4: salimos de nuevo al extenso y encantador JARDIN, es momento de perderse en este pulmón verde, un descongestionante alivio en medio del apretado caserío de este sector urbano tan abigarrado. Su diseño está en parte inspirado en el concepto musulmán que lo entiende como un sagrado edén, un trocito de paraíso, donde los parterres y arriates (todas palabras de origen árabe) que organizan la vegetación te “sugieren” unos pasos interiores para que te pierdas por ellos, descubrirás un purificante y sensorial jardín botánico cargado de propiedades aromáticas y medicinales. ¡Pasea y respira hondo!
PARADA 5: He aquí, en este letrero oxidado, donde “se supone” se cuenta qué es Orive junto al plano del jardín, con el listado referenciado de sus árboles y plantas.
A quien se le ocurrió dar por bueno un PANEL INFORMATIVO METÁLICO para estar a la intemperie. Indescifrable total. Hay que reponerlo urgentemente en otro soporte más adecuado para aguantar dignamente los rigores de nuestro clima extremo, y de paso actualizar su contenido…
A ver si encuentras estas especies: ciprés, buganvillas, naranjos en espaldera, jacaranda, almez, magnolio, cerezo púrpura, granado, kaki, sófora japónica, romero, rosal, jazmín, escalonias… hasta las farolas van a juego, con sus báculos con forma vegetal, para no desentonar. ¿localizas la espadaña de san Pablo?, ¿y la torre de la iglesia de san Andrés? ¿Qué espacio de ocio veraniego a pantalla grande, a todo color y bajo las estrellas está muy cerca, donde queda exactamente?
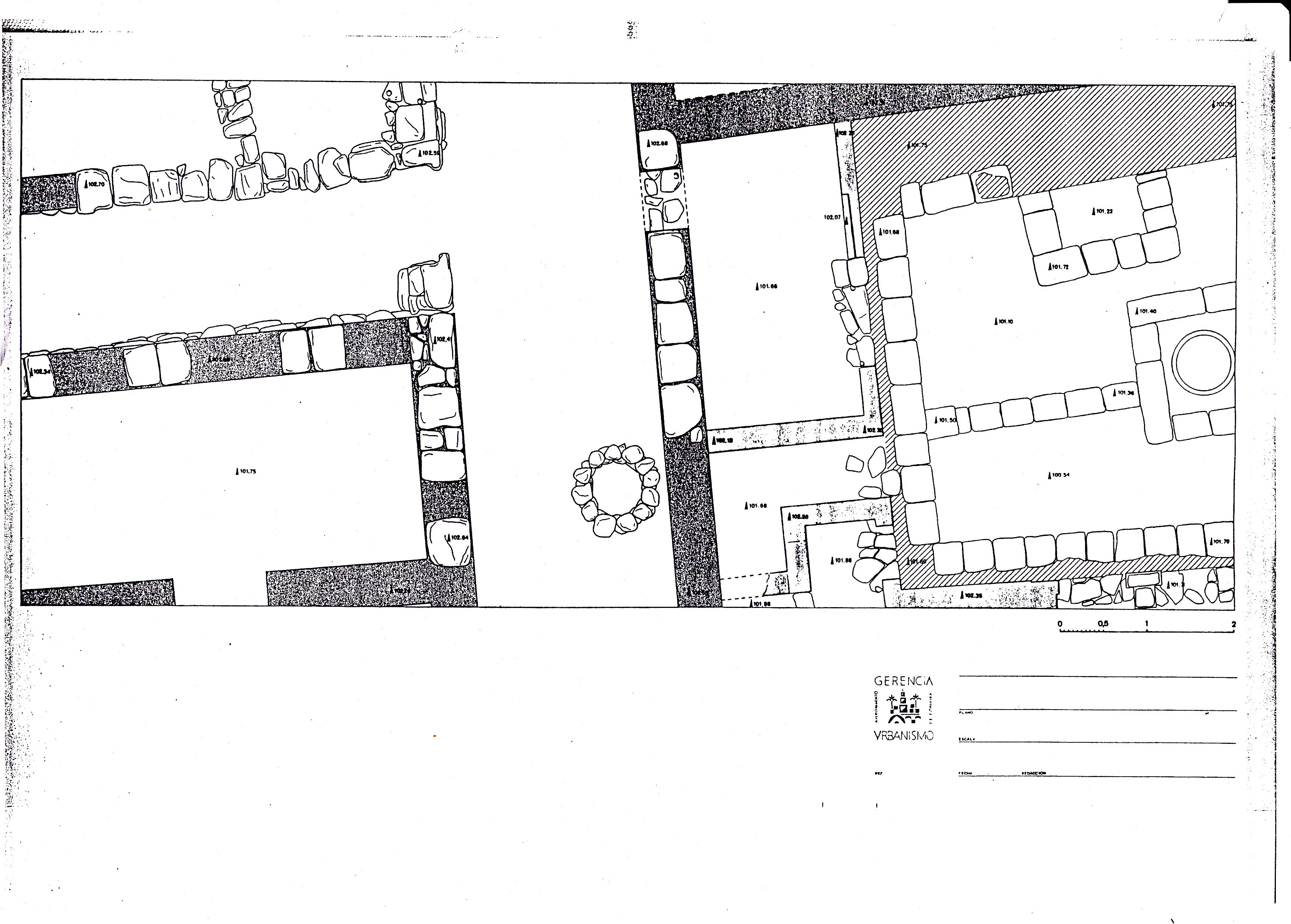
PARADA 6: situándonos de frente al malogrado panel, es donde se abrieron 2 de las 3 cortes de una excavación arqueológica (y al terminar la campaña se volvieron a tapar) que iniciada en el verano de 1992 sacó a la luz, en el nivel más superficial, CUATRO CASAS (no completas), fechadas en época almohade (ss. XI y XII): en torno a un patio, como eje vital en torno al que se abrían las estancias (de algunas se reconocía su uso, como las letrinas), estaban articuladas por una calle con orientación N- S de 2,25 metros de ancho, pavimentada y con banco corrido adosado y otra, como un cierre o callejón de la anterior, en sentido O- E, de 1,50 de ancho. Eran viviendas de gente acomodada, a juzgar por los zócalos de la mayoría de las habitaciones, decorados con un amplio repertorio de pinturas en rojo con motivos geométricos.

Zócalos
La investigación concluyó, tras “casar” y cruzar todos los datos, el estudio de los vestigios aflorados, con sus materiales asociados (como la cerámica, y más en concreto los ataifores), y la información de las crónicas antiguas (como las descripciones urbanas de al Maqqari), que estas viviendas, – que son solo un botón de muestra de lo que sería un barrio residencial más amplio (es decir, es como hacer un zoom… debajo de tus pies descansando bajo tierra, seguro que “continuará” todo lo extenso que es el jardín y más allá) – surgieron cuando Córdoba prospera efímeramente al erigirse en la capital almohade de al Andalus en 1162, ahí donde estuvo una de las lujosas y ajardinadas residencias de la aristocracia cordobesa en época califal.
El barrio seguiría creciendo hasta la conquista cristiana de la ciudad por Fernando III el Santo en 1236. A partir de entonces empieza a desocuparse sin violencia, ordenadamente, hasta que sobre él se construye el imponente convento de San Pablo. Ya puedes continuar la historia.
Al seguir bajando en los cortes ahí estaba, el nivel romano a más de 4 mts. de profundidad sobre el nivel de suelo actual, concretamente un enorme muro fechado en etapa imperial romana (s. I y II) que formaría parte del CIRCO de la Córdoba romana, Colonia Patricia Corduba ¿sabes encontrarlo en los dibujos de los cortes (a escala 1:2000)? y ¿Cómo se llega a esa conclusión?, ¿a qué sección exactamente corresponde del colosal edificio de espectáculos?, ¿hasta qué punto podemos reconstruir su imagen?¿Dónde más se ha documentado?
- Corte arqueológico 1
 
- Corte arqueológico 2
 
- Corte arqueológico 3
 
- Mapa general
 
Son dudas que, junto a otras muchas, resolverás visitando el Centro de Interpretación “la Axerquía en el tiempo”: una bóveda poliédrica en la que, como una cápsula para viajar en el tiempo, harás una impactante inmersión en 3D, con un envolvente videomapping, por la evolución de este barrio histórico tan rico como desconocido en pleno corazón de Córdoba y entenderás lo que por él ha pasado desde que era paisaje hasta la actualidad. Intensas transformaciones que te dejarán huella. Lo tienes a la vuelta de la esquina, literal, saliendo al punto de partida (parada 1) y girando a la izquierda.
A ver si tienes suerte y puedes visitarlo, porque por desgracia abre intermitentemente, a rachas, con horario reducido y periodos puntuales al año. Lo gestiona, cuando le dejan, el Área de Arqueología de la Universidad de Córdoba – porque tiene las limitaciones de tener que ir renovando el visto bueno del Ayuntamiento, del que depende –
Y de PINTURAS MURALES, versión siglo XXI, – y entremezcladas con poesía y columpios varios – están servidos los muros que revisten el jardín. A ver si eres capaz de averiguar cuando se crearon o con qué motivo. Las temáticas son variadas, con un trasfondo reivindicativo. Ya están palideciendo un poco, pero aun nos siguen proponiendo imaginar y reflexionar.
PARADA 7: ha llegado la hora de desvelar qué sensacional ÁRBOL tienes delante (y la razón de ser de este post por la fascinación que despertó en dos madrileñas asiduas de Córdoba). Su nombre científico es Erythrina crista galli, su nombre común es más fácil… pero que sea el profesor Ángel Lora González quien, a través de su libro “Árboles singulares de la ciudad de Córdoba” (año 2015), te hable de este ejemplar único.
Un encargo para ti, el último secreto de Orive, ¡de momento! un profundo POZO, que en su momento tuvo una noria de tracción animal destinada sobre todo a extraer agua para el generoso riego de la huerta, que reutilizó un aljibe y enlaza con una conducción romana (no olvidemos el circo, ahí abajo). Con una profundidad de al menos siete metros su entrada esta protegida por una cancela. Saber a donde lleva, son palabras mayores…. ¿donde está?

Fuente: Blog «Notas Cordobesas» de Paco Muñoz
											
				
			
					
									


























Deja tu comentario